


























Vile Individuale Premium – 4 Camere – Otopeni Central - 23 August
Pozele sunt de prezentare de la ultimul proiect identic deja finalizat.
In prezent Se construiesc 4 vile individuale spațioase, fiecare cu curte proprie, finisaje moderne și utilități complete. Posibilitate de reconfigurare cu 5 camere!
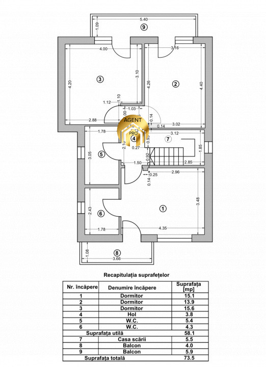
Compartimentare inteligentă:
Parter: Living generos, Bucătărie inchisa (posibilitate open-space), Zonă de dining, Baie, Hol acces, Terasă exterioară
Opțional: Bucătăria se poate muta în living, pentru a crea un al 4-lea dormitor la parter!
Etaj: 3 dormitoare spațioase, 2 băi moderne
Pod: Spațiu de depozitare util, Placă de beton, Izolație cu vată minerală, Geam tip Velux
Facilități și Dotări Premium:
• Utilități complete: curent, gaze, apă, canalizare
• Străzi asfaltate
• Finisaje la alegere – se predau „la cheie”
• Centrala termică proprie
• Încălzire în pardoseală
• Ferestre tripan PVC
• Ușă metalică la intrare
• Internet prin cablu și Wi-Fi
• Izolație termică exterioară de calitate
• Placă beton către pod + geam Velux
Curte amenajată:
• Terasă la ieșirea din living
• Locuri de parcare
• Zonă verde generoasă
Preturi vanzare:
• Vila 1 – Teren 320 mp – 330.000 EUR, nu se adauga TVA
• Vila 2 – Teren 340 mp – 350.000 EUR, nu se adauga TVA
• Vila 3 – Teren 380 mp – 350.000 EUR, nu se adauga TVA
• Vila 4 – Teren 440 mp – Vanduta
Sunt Laura Sava si detin un portofoliu foarte generos
de Case si Terenuri in Otopeni.
Va astept sa le vizionam impreuna, cu siguranta va pot ajuta
sa luati cea mai buna decizie in achizitionarea proprietatii potrivite pentru dvs!