



















Vila individuala cu 5 camere in Otopeni, pe o strada liniștita, curată si asfaltata, cu toate utilitatile si cu iesire directa la DN 1.
Distanta pana la DN1 - 300 metri, cateva minute pe jos.
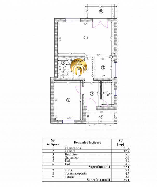
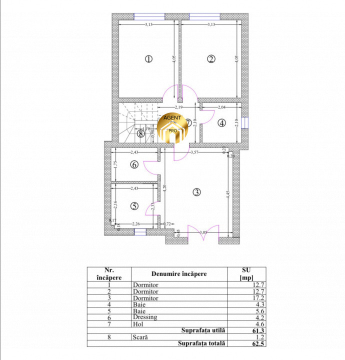
Suprafata utila totala: 130 mp.
Suprafata construita: 159 mp.
Suprafata teren: 301 mp.
Structura din cadre de beton armat, inchideri exterioare si compartimentari interioare din zidarie de caramida. Planseu din lemn peste etaj.
Compartimentare:
Parter: hol de acces, camera(birou/dormitor/bucatarie inchisa), baie de serviciu, living cu bucatarie open space.
Etaj: hol, un dormitor cu dresing si baie proprie, si inca doua dormitoare cu baie comuna.
Pod: depozitare
Utilitati: apa curenta, canalizare, gaze, curent electric, asfalt, iluminat public.
Dotari:
- Centrala termica Ariston Genius One 25kw
- Tamplarie PVC tip Salamander cu geam tripan
- Incalzire prin pardoseala la parter si prin calorifere la etaj.
In apropiere :
• 300 metri distanta de DN1, cateva minute pe jos
• Aeroportul Henri Coanda la 3 minute cu masina
• Scoală si gradinite in apropiere
• DN 1 Value Center la 5 minute
• Mall Baneasa la 5-7 minute
• Magazin My Auchan
Pret vanzare: 265.000 euro, nu se adauga TVA.
Sunt Laura Sava si detin un portofoliu foarte generos
de Case si Terenuri in Otopeni.
Va astept sa le vizionam impreuna, cu siguranta va pot ajuta
sa luati cea mai buna decizie in achizitionarea proprietatii potrivite pentru dvs!